Что можно сделать из старой цепи бензопилы

Что это такое

Для улучшения качества реза, а также продления периода от одной заточки до другой, были придуманы твердосплавные цепи. В распиловке древесины использование твёрдых сплавов — не новость. Технология композитного соединения уже давно и успешно применяется в производстве дисков для циркулярных пил.

Твердосплавная цепь не является однородной по своей структуре. Она представляет собой соединение двух металлов: обычной инструментальной стали и особого сплава повышенной твёрдости. Из первой делаются ведущие, режущие и соединительные звенья, а также заклёпки. Сплав наносится на режущую кромку и верхнюю плоскость рабочего звена в виде тонкой пластины. Метод крепления — пайка. Это значит. что для присоединения твёрдой части и стального основания применяются медно-никелевые и медно-латунные припои. Выбор именно этих материалов неслучаен: они обладают хорошей текучестью, адгезией, а также имеют температуру плавление, примерно на 300 градусов отличающуюся от рабочего разогрева цепи. Именно поэтому перегревать пильную гарнитуру не стоит.

Победит — это народное название сплавов на основе карбида вольфрама, который составляет до 90% от общей массы вещества. Остальные 10% — это кобальт, который необходим как связующее, и совсем немножко углерода. Фактически карбид вольфрама — это металлокерамический материал, обладающий чрезвычайной твёрдостью и превосходной температурной стойкостью.

Изготовление болгарки

Угловая шлифовальная машина — необходимый при проведении целого ряда работ многофункциональный инструмент. Несмотря на его доступность и распространенность, умельцами изготовлена болгарка из бензопилы (образец продемонстрирован на фотографии ниже).

Сборки болгарки с использованием специального приспособления для бензопилы происходит так:

  • с бензиновой пилы снимают цепь и шину;
  • устанавливают на вал редуктора шкив;
  • вместо шины монтируют специальную насадку тоже со шкивом, предварительно надев ремень на него;
  • натягивают ременную передачу как цепь;
  • прикрепляют защитный кожух;
  • ставят диск.

Весь процесс детально показан в видео далее.

Собранная собственноручно болгарка-бензорез поможет в выполнении многих практических задач. Ее мощности достаточно для продуктивного выполнения работ по бетону.

Генератор

Для изготовления подходит бензопила с 2-тактным двигателем мощностью 2-3 л. с. В качестве электрогенератора используют часто электродвигатели от старых стиральных машин. Сочетание этих устройств позволяет получать на выходе электроток напряжением 220 В. Мощности такого бензогенератора достаточно для освещения, питания электрических приборов и инструментов, бытовой техники.

Порядок операций:

  1. Изготавливают кронштейн и крепят к нему электродвигатель. Устанавливают полученную конструкцию на внешнем конце шины бензопилы. При этом обеспечивают:
    • перпендикулярность оси электродвигателя к плоскости шины;
    • расположение шкивов обоих устройств в одной плоскости.
  2. Выходные валы двигателей снабжают шкивами подходящего диаметра.
  3. Одевают на шкивы ременную передачу.
  4. Изготавливают устройство для регулирования оборотов мотора мотопилы. Используют болт, который с помощью хомута крепят к ручке последней. Закручивание его приводит к увеличению количества оборотов, выкручивание — к уменьшению.
  5. Внешнюю пусковую обмотку электродвигателя снабжают 2 конденсаторами, которые рассчитаны на напряжение 400-450 В и имеют общую емкость 10 мкФ. Их подсоединение — параллельное.

Снегоуборщик с двигателем от бензиновой пилы

Чтобы не раскидывать снег лопатой в зимнее время года, вполне возможно самостоятельно сделать снегоуборщик из бензопилы. Для практической реализации проекта необходим двигатель мощностью около 3 кВт (4,1 л.с.), например, от пилы «Штиль». Кроме привода снегоуборщик состоит из таких узлов и деталей:

  • заборного отсека с расположенным внутри шнеком с лопастями;
  • ручки;
  • рамы;
  • выбрасывателя снега.

Все эти узлы видны на следующей фотографии.

Умельцами представлены колесные и оснащенные саночными полозьями модели снегоуборочной техники. Последний вариант более прост в конструктивном плане для воплощения. Вариант конструкции рамы и заборного отсека продемонстрирован на фото далее.

Основные моменты заключаются в подборе пары шестерней и в изготовлении хорошего шнека (показан на фотографии ниже), который будет через цепную передачу приводиться в движение мотором.

Для изготовления корпуса заборного отсека подойдут стальные оцинкованные листы. Лопасти шнека часто делают из толстой резины. В качестве выбрасывателя снега вполне пригодна канализационная труба из пластика.

Как оформить рукоять

От правильного и прочного соединения рукоятки с клинком зависят сроки эксплуатации изделия. Поэтому домашних мастеров интересует вопрос, как сделать рукоять для ножа своими руками, чтобы она была надежно закреплена, была удобной и цельной.

Для изготовления этого элемента используются различные материалы, но чаще всего – дерево, береста или пластик. Она может быть выполнена наборным или накладным способом.

В первом случае, части рукояти насаживаются на хвостик лезвия, плотно прижимаются, соединяются клеем, обрабатываются, в соответствии с представлениями о том, какой формы должна быть рукоятка.

Второй способ обеспечивает прочность частей конструкции на хвостовике, за счет их крепления стальными и медными заклепками. Этот вариант считается наиболее простым в исполнении и достаточно надежным.

Принцип создания мопеда из бензопилы

На сегодняшний рынок техники производители поставляют различные приспособления, приставки, моторчики для любых переделок и усовершенствований всевозможных агрегатов в совершенно неожиданные конструкции. Поэтому для желающих по-быстрому оснастить свой велик мотором и придать ему соответствующее ускорение, возможен вариант приобретения готового комплекта. В соответствии с предлагаемой схемой на велосипед устанавливается движок – и мопед готов.

Суть переделки заключается в монтаже силовой установки на велосипед. Следует учитывать, что мощность устанавливаемого двигателя от мотопилы должна быть ориентировочно 2 л.с., поскольку менее слабый мотор не сдвинет велосипед с места, а слишком мощный будет излишним.

Самодельная газонокосилка

Газонокосилки – это техника для уборки травы. Они применяются владельцами частных домов и дач, чтобы придавать земельным участкам привлекательный, ухоженный вид. Модели заводского производства удобны в эксплуатации, но по стоимости они доступны не всем. Сделанная самостоятельно газонокосилка из бензопилы обойдется гораздо дешевле фирменных аналогов. Ее возможностей вполне достаточно для бытового использования.

Домашние мастера собирают различные по виду и возможностям самодельные газонокосилки. Но любая конструкция предусматривает наличие таких элементов:

  • привода;
  • каркаса;
  • ручки;
  • колес;
  • ножей;
  • системы управления;
  • защитного кожуха.

Процесс изготовления газонокосилки проходит в следующей последовательности:

  • сваривают каркас подходящего размера, например, из металлических уголков 25 на 25 мм;
  • с помощью болтов или сварки к раме приделывают ручки из железных трубок;
  • по углам каркаса монтируют колеса;
  • снимают с бензиновой пилы ручку и шину;
  • прикручивают к раме оставшуюся часть инструмента с помощью шпилек с гайками так, чтобы вал редуктора, перевернутого на 90 градусов, был направлен вниз;
  • удлиняют газовый трос;
  • из двух металлических трубок изготавливают телескопический вал, который затем присоединяют к редуктору;
  • делают нож самостоятельно (например, из полотна ручной пилы) или приобретают заводское изделие;
  • с помощью болтов или сварки соединяют его с валом.

Подойдут колеса от детской коляски, со старой тачки. Если применять трубы разного диаметра, то можно сделать телескопическую рукоятку с возможностью регулировки ее длины — это повышает удобство эксплуатации.

Ножи бывают разных конструкций. Простейший их вариант представлен на нижеследующей фотографии.

Ножи из качественной стали не боятся встречи с небольшими камнями. Они способны косить даже нетолстые кусты. Самодельная косилка некоторыми умельцами дополнительно оснащается травосборником, благодаря которому на участке практически не остается срезанной травы.

Общее устройство газонокосилки

Простейшая конструкция устройства имеет в своем составе различные конструктивные элементы. Основными конструктивными узлами и деталями агрегата являются:

  • двигатель;
  • каркас для закрепления всех узлов и деталей косилки;
  • ножи;
  • кожуха защиты;
  • колеса;
  • ручки управления агрегатом.

Конструкция четырехколесной газонокосилки.

Каркас самой простой конструкции представляет лист металла, который имеет толщину 2-3 мм с отверстием в центре для вала двигательной установки. Укрепление листа основания осуществляется при помощи уголков, сваренных в виде рамы. Двигательная установка прикрепляется сверху к листу. Внизу основания крепится защитный кожух. С боков основания устанавливаются оси для крепления колес. К основанию прикрепляются ручки управления, на которых располагаются рычаги управления.

Если в конструкции устройства используется электродвигатель, который имеет фланец, то крепление осуществляется при помощи этого фланца. Для того чтобы закрепить мотор, требуется просверлить отверстия в станине, которые должны совпадать с отверстиями во фланце. При использовании двигателя стандартного оформления к станине привариваются два уголка, к которым осуществляется прикрепление двигателя при помощи лап на корпусе привода. Для крепления в уголках можно сделать отверстия продолговатой формы в вертикальном направлении. Такой тип крепления в дальнейшем позволяет изменять расстояние от ножей до земли. Эта особенность в конструкции является незаменимой при необходимости выбора оптимальной высоты резания.

Машина

Из бензопил можно сделать разные варианты машин. Один из них — карт багги, который отличается наличием в конструкции подвески. Она делает комфортнее езду машины по бездорожью.

Процесс создания такой самодельной машины сложный. Особенно это касается рамы, которую сваривают из металлических или профильных труб по заранее составленным чертежам. Затем занимаются изготовлением подвески, деталей рулевого управления.

Операции по изготовлению багги включают:

  • сборку подвески;
  • установку руля, тяг и пускача;
  • крепление колес;
  • размещение тормоза;
  • установку кресла водителя;
  • крепление на раму двигателя.

Передать вращение от мотора на колеса можно цепью или ремнем. В первом варианте устанавливают звездочки, во втором — шкивы. Двигатель, чтобы уменьшить шум, снабжают глушителем.

Сильный износ пильного полотна

Шина служит намного дольше, чем цепь. Однако это не означает, что эксплуатировать ее можно вечно, и не задумываться о замене. Обычно направляющая меняется после 2-3 изношенных цепей. Перед заменой направляющей бензопилы, нужно оценить ее техническое состояние. Если на бензопиле установлена шина китайского производства, то она может износиться быстрее, чем цепь. Именно поэтому при обнаружении кривого распила древесины бензопилой, необходимо провести диагностику шины.

Чтобы убедиться в износе шины, необходимо снять ее и осмотреть. Обычно износ проявляется путем укороченного одного из бортиков. Порой обнаружить это визуально крайне сложно, поэтому необходимо воспользоваться штангенциркулем. Разница в несколько десятых мм говорит о том, что шина нуждается в замене. Еще есть простой способ проверки износа направляющей при помощи угольника. Для этого шина располагается на ровной поверхности, и к ней сбоку нужно приставить угольник. Если сверху и снизу стенки направляющей соприкасаются с угольником, значит деталь исправна.

Это интересно! Увеличить срок службы направляющей бензопилы можно только путем периодического ее переворачивания. Для этого обязательно убедитесь в том, что на инструменте предусмотрена такая возможность, о чем подскажут соответствующие разметки на гарнитуре.

Ускоренный износ шины может возникнуть по причине неправильного функционирования масляного насоса. Если смазка подается с большими перерывами, то соответственно увеличивается трение, а значит и детали изнашиваются быстрее. Если смазочный механизм работает исправно, то это в разы увеличивает срок службы не только гарнитуры, но и всего инструмента.

https://youtube.com/watch?v=k4RbvXpFNK8%3F

Как избежать растяжения цепи?

Прежде чем решать, что делать, если порвалась цепь на бензопиле, лучше ознакомиться с основными причинами поломок:

  • Основная причина заключается в низком качестве товара.
  • Бывает так, что запчасть перегревается и растягивается из-за самой бензопилы. Чаще всего так происходит из-за неотрегулированной подачи масла на звездочку. Возможно нарушение регулировки или забитое отверстие, в которое подается масло.

Важно! Бензопиле обязательно требуется регулировка и периодическое техническое обслуживание. Ведущая звездочка также может стать причиной растягивания цепи. В таком случае проскакивают направляющие выступы, происходит трение и нагревание деталей

В таком случае проскакивают направляющие выступы, происходит трение и нагревание деталей

Ведущая звездочка также может стать причиной растягивания цепи. В таком случае проскакивают направляющие выступы, происходит трение и нагревание деталей.

Как сделать мопед из бензопилы или велосипед с мотором

Самодельный мопед из бензопилы вряд ли сравнится с промышленным вариантом прибора, но в качестве своеобразной взрослой игрушки он вполне сгодится. По большому счету приспособление представляет собой не мопед, а велосипед с двигателем от бензопилы. Это связано с тем, что чаще всего применяется именно старая рама от этого транспортного средства.

Мопед с применением бензопилы сможет разгоняться до 30 км/ч

Это интересно! Более продвинутые умельцы берут не готовую раму от старого велосипеда, а самостоятельно изготавливают для этой цели сварную конструкцию из металлических труб или квадратного профиля. А вот основные узлы, включая подшипники, предпочитают использовать заводские.

Перед тем как поставить двигатель от бензопилы на велосипед, следует позаботиться о наличии деталей, таких как:

  • рама;
  • двигатель с бензобаком;
  • редуктор с передаточным соотношением 18:1;
  • амортизаторы;
  • тормоза.

Любой двигатель на велосипед от бензопилы должен дополняться редуктором, чтобы была возможность регулировать вращение колес. Иногда вместо редуктора применяются зубчатые пары, соединенные между собой цепью от велосипеда. Если за основу брать горный вариант велосипеда, то здесь в большей степени подойдет редуктор с передаточным числом 1:15 или 1:20, дополненный вариатором. Главное преимущество горного велосипеда с мотором от бензопилы состоит в том, что в отличие от обычного устройства его получится разогнать до 30 км/ч.

Другим простым в исполнении транспортным средством считается карт из бензопилы, напоминающий упрощенную модель автомобиля, которая применяется в основном для кольцевых гонок. Прибор лишен цельного корпуса, в нем нет амортизаторов. Минимальное количество деталей позволяет облегчить конструкцию и обеспечить ему большую скорость передвижения.

Для велосипеда понадобиться не только двигатель от бензопилы, но также и редуктор

Рама чаще всего варится самостоятельно из металлопрофиля, а в качестве донора колес используются старые тележки. В качестве привода на заднюю ось применяют велосипедную цепь, а также понадобится рулевая трапеция. Чтобы собрать корпус, потребуется использование сварочного аппарата. Некоторые считают карт, выполненный своими руками, детским автомобилем с бензиновым двигателем, но нужно учитывать, что транспортное средство способно развивать приличную скорость.

Сложности технологии

Необходимо постоянно следить за температурой заготовки, не давая ей остывать. Работая тяжелым молотом, особенно без должной практики и опыта, можно легко повредить завитки троса в местах, где должен остаться отчетливый рисунок плетения. Нежелательные попадания ребром или углом кувалды по разогретой заготовке оставляют глубокие вмятины, которые не всегда удается сточить.

Смотреть галерею

При работе неизбежен процесс выгорания углерода из металла. Есть мастера, которые расковывают нож из троса на плотной древесине, положенной на плоскость наковальни. При соприкосновении с разогретым металлом она тлеет, кислород воздуха в месте соприкосновения сжигается, что снижает степень выгорания углерода из материала. К тому же, расковывая трос на дереве, вы добиваетесь того, что заготовка медленнее остывает, можно за один цикл сделать больший объем работы.

Какие можно сделать самоделки из бензопилы «Дружба» и других приборов

Даже без использования дополнительных деталей бензопила способна выполнять большой спектр задач. Если к классической конструкции приобрести дополнительные насадки, получится расширить возможности использования прибора в хозяйстве и получить такие устройства:

Для бензопилы можно приобрести специальные насадки или сделать с ее применением нужный инструмент

  • снегоуборщик;
  • кусторез;
  • насос для перекачивания воды;
  • бензорез;
  • окариватель.

Некоторые умельцы, вооружившись элементарными знаниями по механике, создают дополнительные приспособления своими руками для бензопил, которые позволяют значительно расширить границы применения инструмента. Чтобы его переделать, необходимо понимать принцип работы универсального моторного привода, который легко использовать для изготовления других устройств. Таким образом, взяв мотор от бензопилы, получится создать такие приборы:

  • ледобур или буроям;
  • мотор для лодки;
  • машинку или велосипед с мотором;
  • газонокосилку;
  • генератор.

Причиной популярности самоделок из бензопил «Дружба-4», «Штиль» или «Урал» является большое количество преимуществ:

  • мощный двигатель;
  • небольшая масса и компактные размеры;
  • возможность использования в экстремальных условиях.

Как правило, самоделки делают из бензопил «Урал», «Дружба», «Штиль»

Косилка

Чаще всего газонокосилку из бензопилы своими руками делают роторного типа. Выглядит она в виде небольшой тележки, на которой смонтированы все агрегаты, детали. Делают ее сварной, используя металлические трубы или полосы. Снизу устанавливают колеса, размер которых должен позволять приспособлению без затруднений перемещаться по любой поверхности.

Есть варианты сенокосилок своими руками из бензопилы, укомплектованные 2, 3 или 4 колесами. Газонокосилка из бензопилы в 2-колесном исполнении обладает лучшей маневренностью, поэтому получила большее распространение. В ней устраивают специальный кожух, который предотвращает соприкосновение работающего агрегата с землей.

Чтобы сделать газонокосилку, с бензопилы вначале демонтируют штурвал и шину. Мотор на раме располагают так, чтобы вал был снизу. Тележку снабжают ручками, которые делают из труб. На них крепят штурвал мотопилы, удлиняют тросик, которым управляется дроссельная заслонка карбюратора.

Дальше для косилки из бензопилы изготавливают узел, которым скашивается трава:

  1. Вначале к звездочке мотора приваривают отрезок трубы длиной 80 см и диаметром 50 мм.
  2. Внутри нее располагают другую трубу, которая меньше первой в диаметре на 8 мм.
  3. Соединяют трубы между собой болтами М6. Трубчатая конструкция позволяет регулировать высоту среза травы.
  4. На конце широкой трубы приваривают металлический диск толщиной 4 мм и диаметром 18 см.
  5. К диску крепят ножи-лезвия, изготовленные из старой ножовки. Их ширина — 3 см, длина — 12. Соединение выполняют болтами М6 неплотно, что позволяет предохранить лезвия от поломки при встрече с камнями.

Особенности создания самоделок из бензопилы «Урал»

Такие пилы больше подходят для мощных агрегатов – пилорама к примеру. Однако несмотря на высокую мощность, устанавливать двигатель от «Урала» на велосипед для улучшения ходовых качеств, явно не стоит. Дело в том, что повышенная мощность компенсируется сильной вибрацией, что может привести к тому, что на ходу слетит цепь. А это чревато неприятностями.

«Урал 2 электрон» − такой и сегодня можно встретить на прилавках российских магазинов

Полезная информация! Несомненным преимуществом «Урала» является то, что новый аппарат можно найти на прилавках магазинов и сегодня. Это значит, что для более новых моделей проблем с обслуживанием и запасными частями не будет. Главное, чтобы руки были на месте.

Сборка пилорамы

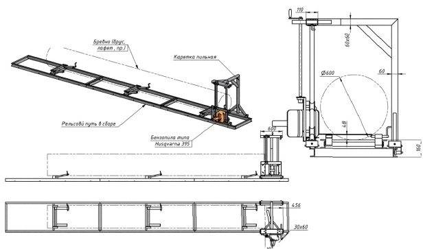
При строительстве домов и других построек из бревен часто приходится распускать их на брус. Пилорама из бензопилы позволяет делать это максимально эффективно с хорошей точностью реза. При этом сам инструмент не требует каких-либо переделок. Его просто закрепляют в раме сделанной, например, из металлических уголков либо профильных труб. Обрабатываемые бревна укладываются на направляющие. Вся конструкция представлена на схеме ниже.

В самодельной пилораме бревно не передвигают: движется каретка с пилой, фиксируемой на нужной высоте (в зависимости от толщины пиломатериала) четырьмя винтами. Из-за того, что рама движется точно, распиливание происходи аккуратно, рез получается ровным. Созданное приспособление (вариант его представлен на фото далее) позволяет также без проблем распиливать доски, заготавливать дрова.

Чем и как точить

Для затачивания цепи применяют напильник, болгарку или спецстанки. Каждый способ требует соблюдения определённой технологии.

Набор напильников

Заточку проводят готовым или самостоятельно собранным комплектом

В комплект входят:

  • Круглый и плоский напильники.
  • Ограничительный шаблон.
  • Крючок для прочистки.
  • Державку, регулирующую положение напильников.

Инструменты приобретают по отдельности или в готовом комплекте, подобранном к цепи с определённым шагом

Чтобы правильно выбрать набор, важно знать его параметры

Круглый напильник подбирают по овалу в корпусе звена. На непрофессиональных пилах диаметр зуба цепи не бывает больше 5,5 мм, поэтому более габаритные напильники не применяют.

Процесс затачивания выглядит так:

  1. Пилу устанавливают на ровную поверхность.
  2. Сначала проводят осмотр цепи на предмет сломанных звеньев, затем фиксируют её тормозом.
  3. По нанесённым разметкам на верх ограничителя и зуба устанавливают державку: она помогает удержать напильник на высоте 1/5 над лезвием.
  4. Начинают с наиболее низкого зуба. Остальные звенья подгоняют под него. Напильник перемещают изнутри наружу. Располагают его параллельно нанесённой на цепь метке. Зубья затачивают равным количеством движений с одинаковым нажимом.
  5. Затем точат ограничители. Устанавливают шаблон, чтобы ограничитель попал в отверстие, и стачивают выбивающиеся из него кромки плоским напильником.

Заточка болгаркой

Применять УШМ стоит только в крайних случаях, когда нет времени на долгую работу напильником. Обработанная болгаркой цепь не будет заострена идеально, но работоспособность пилы восстановить можно. Недостаток метода в чрезмерном перегреве зубьев во время затачивания. В результате металл становится хрупким, и срок службы цепи резко сокращается.

Для процесса понадобится:

  • УШМ, желательно небольшого размера и мощности.
  • Отрезной круг толщиной 2–3 мм.
  • Тиски для жёсткого закрепления болгарки на поверхности.

Инструкция выполнения заточки:

  1. УШМ крепят тисками, чтобы диск встал вертикально и не прикрывался кожухом.
  2. Включают болгарку и поочерёдно затачивают звенья.

Заточка болгаркой крайне травмоопасна, поэтому новичкам применять её не стоит.

Работа на станке

Самую качественную заточку можно произвести на спецстанках 2 видов:

  1. Механический – это устройство, которое крепится на шине. Мастеру достаточно продвинуть напильник несколько раз по отрегулированной направляющей, затем переставить его на следующее звено. Приспособление не требует настройки и контроля угла, поскольку всё сделано заранее.
  2. Электрический – состоит из направляющей и расположенным над ней затачивающим диском. Цепь снимают и вставляют в направляющую. Мастеру достаточно опускать диск на зубья, передвигая их в нужное место.

Электрический станок обладает явным преимуществом. Качество заточки и её равномерность на зубцах гарантирована, поэтому с работой справится даже не имеющий навыков работы напильником владелец пилы

Станок позволяет менять угол заточки, что необходимо для подготовки пилы к работе с древесиной различного качества. Твёрдое дерево требует меньшего угла, мягкая – большего.

Специалист по затачиванию цепей Владимир из Днепра утверждает, что при наличии навыков выполнение процесса вручную напильником позволяет получить более качественный результат. Станок даёт только 30 градусов по горизонтали и 45 – по вертикали, звенья в процессе заточки перегреваются, поэтому изнашиваются в 2 раза быстрее. Использование напильника обеспечивает более бережное затачивание и продлевает срок эксплуатации цепи.

Система PowerSharp

Оригинальное приспособление, позволяющее затачивать специальную цепь прямо на пиле за несколько секунд. С её появлением процесс восстановления работоспособности пилы стал максимально быстрым и простым.

Система состоит из следующих деталей:

  1. Цепь PowerSharp. Модель оснащена сверхзаточенными резчиками с алмазным покрытием. За счёт профилированных соединительных звеньев она качественно пилит древесину и великолепно отводит стружку.
  2. Пильная шина со специальными пазами-отверстиями;
  3. Заточное устройство – пластмассовый блок с установленным внутри брусом на основе абразивов. Брус рассчитан на срок эксплуатации цепи и заменяют их одновременно.

Процесс затачивания:

  1. Шину надевают на штыри в точильном устройстве.
  2. Прижимают упор точильного устройства к любой твёрдой поверхности.
  3. Запускают пилу на максимальных оборотах на 5 секунд.

Какие еще можно выполнить самоделки из бензопилы

Мотор от бензопилы можно использовать для самостоятельного передвижения практически любого транспортного средства. Так, оснастить приводом можно детский или взрослый самокат, который сможет разгоняться до скорости 10-15 км/ч. Главные преимущества использования самоката – высокая маневренность и отсутствие необходимости большого пространства для хранения. Тем более что для изготовления не придется разбирать бензопилу на детали. Нужно будет снять только шину и пильную цепь, которая заменяется велосипедной и служит деталью, передающей крутящий момент на заднее колесо.

Помимо изготовления транспортных средств, используя некоторые детали пилы, можно создать и небольшую мобильную электростанцию, которая достигает мощности 5 кВт. Чтобы создать генератор, от бензопилы потребуются мотор, стальная рама, электрораспределительная коробка с подключенными розетками, а также редуктор, с помощью которого крутящий момент будет поступать на вал генератора.

Довольно часто цепи от бензопил в своей работе используют ковали

У ковалей пользуются популярностью некоторые самоделки из цепи от бензопилы, например, некоторые создают цельнокованые ножи. Для этого цепь делится на куски, из которых потом и сваривают основания клинков путем накаливания их до 850 °C. Прессование расплавленной цепи происходит до тех пор, пока не пропадут пустоты между звеньями.

Для создания самоделок из бензопилы требуется знать основы простой механики, потому как нужно правильно соединить между собой все элементы. Не следует приобретать для изобретения дорогостоящий инструмент, для этого подойдут и бюджетные модели бензопил. При покупке необходимо учесть, что пила обязана легко разбираться, а детали для нее должны быть доступны в продаже. Для изготовления приспособлений лучше брать уже готовые чертежи, особенно если ранее не было опыта создания самодельных приборов.

Что можно сделать из бензопилы Дружба

Техника, которую можно сделать своими руками из имеет большой список. Все ограничивается только фантазией мастера. В интернете опубликовано много видео с подробным описанием пошагового изготовления самоделок. В рамках статьи мы собрали только самые лучшие видео, на основании которых можно без проблем сделать нужную вам технику. Самой простой самоделкой считается лодочный мотор, а сложной – вездеход, мотособака, газонокосилка. Приведем примеры самоделок от простого к сложному.

Нож из шины

Эта поделка не имеет прямого отношения к бензопиле Дружба 4, однако пользуется спросом, т.к. нож из шины бензопилы Дружбы очень хорошо держит заточку, устойчив к коррозии. Для изготовления потребуется только сама шины от пилы. Цена на вторичном рынке варьируется от 200 до 500 рублей. Для реализации поделки предлагаем посмотреть интересное видео, автор которого подробно описывает, как сделать кухонный нож из шины. Особенность видео в том, что автор показывает простой метод проделывания отверстия в стали рукоятки, без сверления.

Велосипед

Чтобы сделать велосипед с двигателем от бензопилы Дружба понадобится сама пила и велосипед, желательно Кама с багажником. Процесс изготовления самоделки:

  1. Закрепить двигатель на раме велосипеда.
  2. Проложить тросик газа и курок на руль.
  3. Соединить цепью приводное колесо велосипеда и шкив на двигателе пилы.

Косилка (газонокосилка)

Чтобы сделать косилку, опять потребуется сама бензопила Дружба 4, маленькие колеса, нож и металлопрокат для изготовления корпуса и защитного кожуха. Нож подойдет либо от мотокосы, либо от газонокосилки, все зависит от того, какой рабочий диаметр будет заложен проектом. Представляем вашему вниманию на обзор видео, автор которого сделал косилку из бензопилы Урал (существенного отличия от Дружбы нет, поэтому и рекомендуем к просмотру).

Лодочный мотор

Переделать бензопилу в лодочный мотор уже будет гораздо сложнее, нежели в велосипед или косилку. Изделие будет нацелено на контакт с водой, а с ней, как известно нужно быть предельно внимательным. По рекомендациям многих мастеров, привод и вал лучше использовать от старого лодочного мотора. Двигатель от Дружбы 4. Останется только соединить их воедино. Для примера рекомендуем посмотреть интересное видео, автор которого сделал лодочный мотор из бензопилы Дружба 2. Автор демонстрирует работу пилы в бочке с водой.

Пилорама

Чтобы сделать пилораму из бензопилы, достаточно изготовить приспособление для продольного роспуска бревна. Ее задача – удерживать шину пилы в ровной плоскости относительно бревна. Для наглядного представления рекомендуем посмотреть видео демонстрации приспособы в работе. Из видео становится ясно, что для самоделки нужен минимум материалов – обычный металлопрокат (профильная труба).

Вездеход

Переделать бензопилу в вездеход уже очень сложно, но все-таки возможно. В интернете много видео, авторы которых реализовали данную идею. Вся суть заключается в том, что нужно изготовить свое шасси: раму, колеса, привод и т.д., а в качестве двигателя будет использоваться бензопила Дружба 4. Единственная рекомендация – это использовать вместо колес обычные камеры, связанные по периметру, такие колеса существенно легче тех, что с шинами, соответственно мотору будет гораздо проще во время движения.

На обзор предлагаем посмотреть интересное видео о самоделке вездеходе из бензопилы Дружба 4. В самоделке используется самокат, гусянка, поэтому это скорей всего снегоход, нежели вездеход.

Мотособака (мотобуксиробщик)

Изготовление мотособаки из бензопилы Дружба 4, как и в случае с вездеходом также сводится к первоначальной разработке шасси: рама, гусеница, управление и т.д. А двигатель пилы это всего лишь движущая сила.

Предлагаем посмотреть интересное видео, автор которого показывает, как сделать мотособаку почти из подручных материалов. Например, зацепы гусеницы изготовлены из обычных пластиковых труб, а весь каркас мотобуксировщика сварен из обычной профильной трубы маленького диаметра.

Вертолет

Переделка бензопилы в вертолет – это скорей всего просто эксперимент, практического применения нет. В интернете есть видео летательных аппаратов, авторы которых разработали такие проекты и реализовали в жизнь, например самодельный самолет из бензопилы.

На что обратить внимание

Разумеется, внедрять подобные ноу-хау следует с большой осторожностью, руководствуясь здравым смыслом и соблюдая технику безопасности. Нужно иметь в виду, что различные насадки могут сокращать ресурс мотора бензопилы, к примеру, из-за нештатных режимов работы (долгое время на повышенных оборотах)

А, допустим, эксплуатация приспособлений типа насадки-бензореза с абразивным кругом способствует быстрому засорению воздушного фильтра цепной пилы. Также не забываем про киловатты и лошадиные силы. Бензопила должна обладать достаточной мощностью, чтобы справиться с поставленной задачей.

Источник

Последствия эксплуатации не заточенной цепи

Если не затачивать своевременно цепь цепной пилы, работать пользователю становится все тяжелее, а спил становится неровным. Такая эксплуатация приведет к таким негативным последствиям, как:

  • снижение КПД – распил требует больших физических усилий, соответственно, скорость работы падает;
  • повышение расхода топлива – перерасход может достигать 30%;
  • снижение срока службы пилы – быстро изнашивается цепная гарнитура, а также перегревается двигатель, что повышает вероятность выхода из строя инструмента;
  • риск получения травмы пользователем – при нестабильной работе пилы может порваться цепь.

Лодочный мотор

Такой агрегат понравится любому рыбаку. Купить настоящий лодочный мотор достаточно дорого, а кроме того он еще и весит немало. Другое дело насадка на бензопилу, превращающая ее в лодочный мотор. Тут и цена ниже, и весят они вместе гораздо меньше. Развить большую скорость конечно не получится, но до 10 км/ч — вполне. А это все равно лучше, чем грести веслами.

Можно такую насадку и не покупать, а сделать самому, если руки к этому приспособлены — получится еще дешевле.

Ну и помимо того, что можно двигаться по реке, не работая веслами, бензопилу можно будет использовать и по назначению, что часто пригождается на рыбалке.

Поделитесь в социальных сетях:FacebookXВКонтакте
Напишите комментарий