Обработка погреба для защиты от влаги – важная процедура для свежести продуктов
На одной просушке помещения меры по уходу за погребом не заканчиваются. Чтобы продлить период сохранности погреба без влаги, поверхность пола и стен необходимо покрыть гидроизоляционными составами. Если стены в помещении возведены из бетона, применяйте пропитку глубокого проникновения. Ее нужно нанести в несколько слоев, каждый из которых будет просачиваться внутрь плит и закроет отверстия и трещины в них.
Рубероид считается хорошим изолятором
Иногда просушенный погреб покрывают рубероидом. Он считается хорошим изолятором, однако для его использования стены и пол должны быть идеально ровными. Для этого вначале на поверхности наносится мастика, которую нужно нагреть, после чего сверху уложить сам изолятор.
Экологически безопасным материалом для гидроизоляции является глина. Она должна быть очень жирной, иначе никакой пользы от ее использования не будет. Перед нанесением материала пол подвала нужно выложить камнями, поверх которых высыпается перемешанная с песком глина. Слой должен составлять примерно 10–12 см. После нанесения глину нужно утрамбовать между камнями, после этого сверху нужно насыпать слой из песка крупных фракций. Его также потребуется утрамбовать. Единственным минусом этого метода считается длительное высыхание пола. В среднем на это уходит примерно 30–40 дней.
Как правильно сделать вентиляцию в погребе
Чтобы верно сделать вытяжку в погребе своими руками, рекомендовано применить четкие чертежи и схемы, это поможет предотвратить образование конденсата, спасти урожай от порчи. Благодаря шикарному ассортименту строительных материалов, есть возможность смастерить вентиляцию погреба в гараже своими руками.
Когда под гаражом расположен погреб, но в нем отсутствует вентиляция, на продукты будут пагубно влиять различные яды и токсины, выделяемые автомобилем. Решить данную проблему поможет проточно-вытяжная вентиляция. Такой тип воздухообмена возможен даже естественным образом либо за счет вентиляторов. Что касается верхушки трубы, то она выводится над гаражом.
Точная, правильная схема вытяжки поможет устранить проблему в самые сжатые сроки. Если монтировать приточную трубу, есть возможность прохождения очищенного воздуха в подвал. Роль трубы с вытяжной функцией в гараже с погребом – ликвидация чрезмерной влажности, ядовитых веществ. Оптимальный выход – удачная комбинация вытяжной, приточной системы, что можно сделать двумя методами:
- Естественный воздухообмен. Данный вариант является наиболее популярным и распространенным, понадобится монтаж двух труб – приточной и вытяжной. Устройство прекрасно функционирует, ведь температурный показатель в подвале и снаружи существенно отличается. Основной недостаток в том, что в теплый период вытяжка не функционирует. Что касается зимы, то ее придется прогревать дополнительно.
- Принудительная вентиляция в погребе. Предложенная система – самый лучший вариант из всех существующих. Благодаря данной вентиляции удается добиться оптимального микроклимата, который аналогичен уличному. Помогает обеспечить идеальный воздухообмен, так как задействованы разнообразные агрегаты, вентиляторы.
Читайте еще: Как грамотно организовать систему вентиляции в подвале частного дома.
Обустройство принудительной вентиляции выполняется с помощью электрических вентиляторов, которые добавляют в систему. Сделать подобную систему своими руками очень просто. Основное преимущество – стабилизация температуры и уровня влажности, несмотря на погоду и сезон.
Схема предложенного устройства почти не отличается от естественной вентиляции. Алгоритм действий прост: крепление труб, монтаж вентилятора в вытяжную трубу. Вместо вентилятора можно использовать иффузор-флюгер поворотный, его устанавливают на верхушку приточной трубы, функционирует от ветра. Обеспечить хорошую вентиляцию поможет дефлектор, который улучшает воздухообмен и разрежает воздух.
Есть еще один метод – установка в вытяжную трубу нагревательной лампочки, которая будет прогревать воздух.
Лучшим и наиболее продвинутым вариантом считается принудительная вентиляция механизированного типа с помощью специального моноблока. В нем устанавливается ПО, что и управляет модульной системой. Основная проблема и недостаток – высокая стоимость.
Схема правильной вентиляции погреба в гараже
Чтобы эффективно пользоваться погребом гаража, важно обеспечить правильную, полноценную вентиляцию. Для создания естественного вентилирования, можно самостоятельно смонтировать систему, используя пластиковые канализационные трубы. В процессе работы стоит соблюдать некоторые правила и советы:
В процессе работы стоит соблюдать некоторые правила и советы:
- вентиляционная схема обязана содержать ограниченное количество изгибов, поворотов труб;
- нужно утеплить вытяжную трубу, иначе будет появляться конденсат;
- закрыть колпаком вход в трубу, чтобы предотвратить попадание осадков;
- вся длина трубы должна иметь равный диаметр.
Чтобы обустроить естественную вентиляцию, следует выполнить расчет площади всех отверстий. Начало приточной трубы на 50 см выше пола подвала, ее выводят наружу. Что касается вытяжной, то ее фиксируют под потолком, протягивают за крышу гаража
Важно, чтобы трубы находились в противоположных углах помещения
Выполнив все расчеты, определив сечение диаметра, необходимо определиться с материалом труб для вентиляционной системы. принято использовать два основных вида, а именно асбестоцемент и полиэтилен пониженного давления. Трубы, изготовленные из асбестоцемента, структурой похожи на шифер, поэтому их принято называть шиферными. Такое сырье считается долговечным, прочным и надежным.
Полиэтиленовые трубы совершенно не уступают в прочности, но у ни намного проще способ установки, не придется пользоваться услугами профессионалов. Основное условие – их нужно спаивать.
Как это работает
Теоретически погреб – это любое место, которое использует естественные охлаждающие, изолирующие и увлажняющие свойства грунтов. Для правильной работы в нём должна поддерживаться положительная температура от 1° до 4,5° C, уровень влажности от 85 до 95%. Летом в пределах 7 – 8 градусов, но и 12 – тоже не критично.
Минимальные положительные температуры замедляют выделение газообразного этилена из овощей и фруктов, останавливают рост микроорганизмов, которые вызывают гниение. Высокий уровень влажности предотвращает потерю влаги в результате испарения и, соответственно, увядание запасов.
Постоянный микроклимат формируется за счёт того, что температура на глубине изменяется – в отличие от поверхности – в значительно меньших пределах, так земля имеет небольшую теплопроводность.
Для получения требуемого микроклимата и служит вентиляция в погребе.
Вытяжка в погребе с одной трубой
Чтобы подвал был вентилируемым, сухим, хватит даже одной трубы. Положительную роль сыграют любые щели.

Вытяжка с вентилятором
Единственное, на что стоит обратить внимание, так это то, что диаметр трубки воздуховода обязан быть не более пятнадцати сантиметров. Если не получается наладить циркуляцию воздуха, рекомендовано организовать процесс с помощью механического пробуждения
Все предельно просто: установить вентилятор в вытяжной трубе.
Главная составляющая прекрасного микроклимата в погребе – влажность воздуха, которую можно регулировать с помощью вентилятора
Важно заметить, что слишком высокий уровень влажности ухудшает качество вентилирования. Такое случае в том случае, если в подвал проникают грунтовые воды, что бывает весной при таянии снега
В этот период погреб сыреет, а вентиляционная система не способна справляться с такими серьезными нагрузками.
Читайте еще: как сделать вентиляцию в гараже своими руками.
Решить вопрос можно следующим образом: взять жестянку, она должна быть больше на полтора миллиметра отверстия трубы. 
У дна просверлить боковушку, аккуратно вырезать отверстие, а ниже прикрепить винт, чтобы снаружи осталась гайка и резьба. Получается балансировочная самодельная система, способная обиться ровного положения для ветроуловителя. В боковой части банки, а именно напротив отверстия, следует монтировать хвост трапециевидный, чтобы он выполнял функцию флюгера, а именно разворачивал прибор к ветру и ловил воздушные потоки.
Ветроулавливающую систему установить на трубку: поставить ось с резьбой, закрепить кронштейном. В центре просверлить дно, изнутри протянуть болт и навернуть ось с резьбой. Завершить процесс монтажа балансированием. С помощью подобного устройства можно существенно улучшить вентиляцию. Принцип деятельности хитрого прибора невероятно простой. Система поворачивается за счет флюгера таким образом, чтобы боковое отверстие направлялось против воздушного потока. Благодаря такой схеме, чистый воздух может легко проникать в трубу и поступать в подвал.
Рекомендуем полезную статью для дачников и огородников: Как сделать автомат для проветривания теплицы своими руками.
Подводя итоги, можно отметить, что грамотно обустроенная вентиляция показывает собственные приоритеты в течение нескольких недель. Воздух погреба очистится, слегка увлажнится, а продукты не будут промерзать и сохнуть. Что касается показателей температурного режима, то они смогут легко стабилизироваться.
Для чего нужна вентиляция в погребе
Необходимость грамотного устройства вытяжки в погребе обуславливается следующими факторами:
- Воздухообмен в подвале сбережет и удлинит срок эксплуатации всех конструктивных элементов здания.
- Правильная вытяжка в погребе сделает невозможным появление грибковых очагов и заражения плесенью.
- Она предохраняет от влияния конденсата, который губительно действует на всю конструкцию строения.
- Опасность метана и углекислого газа. Общеизвестно, что почти всякий материал может сравнительно быстро потерять свои свойства под действием воды и кислорода. В погребе содержание кислорода может быть минимальным при избытке влаги, соответственно образуется опасный газ – метан и углекислый газ.
- Избыток метана может привести не только к пожару, но и к взрыву, а превышенное количество углекислого газа в подвале вызывает отравление и потерю сознания. Поэтому спускаться в такое невентилируемое подвальное помещение опасно для жизни.
- Сохранность урожая. Погреб – это удобное и незаменимое помещение в частном доме для хранения заготовок, продуктов и собранного урожая овощей. А без должной вытяжки его невозможно сохранить до следующего года, поскольку в сыром подвале овощи быстро подвергнутся гниению.

Таким образом, на вопрос, нужна ли вентиляция в погребе, ответ должен быть однозначен…, так как система вентиляции в подвальном помещении дома имеет решающее значение.
Организация принудительной вытяжки
Если решено делать принудительную вентиляцию в гараже с подвалом, стандартные вытяжные каналы дополняют специальными вентиляторами, обеспечивающими принудительный воздухообмен. Самостоятельное изготовление подобной системы не составляет особого труда. Это связано с тем, что она по своей конструкции мало отличается от естественной вытяжки.
Важнейшим достоинством искусственного проветривания считают его способность поддерживать как температурный режим, так и режим влажности в любых условиях. Для устройства принудительной вентиляции своими руками внутри гаража обустраивают ведущие к поверхности трубы. Их делают несколько: часть отвечает за приточную, а часть — за вытяжную подачу воздуха. В трубы, отвечающие за вытяжку, и устанавливают электрический вентилятор.
Вентилятор — не единственное средство, с помощью которого организовывают принудительную вытяжку. Для этого используют и такие способы, как:
- диффуз-флюгер;
- дефлектор;
- нагревательная лампочка.
Первый способ требует действия потоков входящего воздуха на вершине приточной трубы. Второе же устройство устанавливают на вытяжную трубу, и оно создает зону разряженного воздуха. Что касается лампочки, то она нагревает входящие потоки до нужного уровня температуры.
Проектирование
Первый этап работ по самостоятельному созданию принудительной вентиляционной конструкции — ее проектирование. Составляется схема подвала и расположения вентиляционных каналов. На ней рисуют и то, как именно будут проходить каналы-трубы.
Во время проектирования решают, куда они выходят и как производится забор воздуха
Так, важно предусмотреть правильное расположение заборной поверхности на крыше или стене гаража своевременно
Приобретение необходимых материалов
По окончанию проектирования приобретают все необходимое для создания системы и её монтажа. В частности, не обойтись без:
- вентиляционных труб;
- защитных решеток;
- козырьков для уличных концов труб;
- дефлекторов;
- вентиляторов;
- кабеля;
- крепежных хомутов;
- дюбелей и саморезов;
- молотка;
- дрели.
Этого инструментария хватит для выполнения всех стандартных монтажных работ. Главное – правильно рассчитать количество на основании созданной схемы.
Выполнение монтажных работ
Наиболее распространенный вариант принудительной вытяжки — с двумя трубами. Первым делом пробивают в намеченных местах стен отверстия и монтируют крепежные конструкции. Далее на полу собирают сами воздуховоды. Изгибов в них избегают. В трубы помещают вентилятор, и проводят провода для их питания. Неподалеку устанавливают выключатели.
Проверка работы системы
Проверку тяги в вентиляции производят просто — с помощью зажженной свечи или спички. При наличии хорошего потока воздуха пламя отклоняется в ту или иную сторону (зависит от типа канала).
Как правильно сделать вентиляцию в погребе с повышенной влажностью, осушение погреба
Бывают ситуации, когда хранилище строится в местности, для которой характерен высокий уровень грунтовых вод или климат с повышенной влажностью. Большое содержание влаги в воздухе может негативным образом сказаться на состоянии продуктов, которые хранятся в погребе.
Кроме того, при системе вентиляции погреба с одной трубой, влага часто конденсируется на ее стенках, а в холодное время года – замерзает. Таким образом она может намерзнуть в несколько слоев и полностью закупорить вентиляционное отверстие. Чтобы этого не произошло – необходимо обустройство системы принудительной вентиляции с усиленной вытяжкой.
При помощи принудительной вытяжки можно существенно уменьшить влажность в любом типе погреба. Как сделать сухим даже достаточно большое помещение? Для этого необходимо использовать не только вентиляционную систему, но и предварительно просушить погреб. Чтобы это сделать, нужно перед обустройством вентиляции в погребе своими руками вынести из него все продукты, после чего провести работы по сушке.

Схема установки свечей для просушки подвала
Осушить погреб можно несколькими способами:
- При помощи железной печки или жаровни – в подвал опускается жаровня или ведро с углями, огонь поддерживается до тех пор, пока в помещении не станет достаточно сухо. Перед началом такой сушки в погребе необходимо открыть дверь и другие отверстия. Огонь лучше всего разжигать при помощи древесных опилок или щепок, а при необходимости операцию можно повторить несколько раз.
- С помощью свечи – свеча устанавливается под вытяжкой в погребе. Правильное использование такого метода подразумевает небольшие размеры погреба, иначе он не будет достаточно эффективным. Сушка подвала при помощи свечи проще, чем с использованием жаровни, но и занимает больше времени. Как правило, на это уходит несколько дней, в течение которых свечи придется регулярно менять.
- С использованием специального осушителя воздуха – хороший вариант для хранилищ большого размера, позволяет быстро избавиться от влажности в помещении. Использовать осушитель можно в дополнение к обычной системе приточно-вытяжной вентиляции, если в погребе часто скапливается влага.
Выбирать подходящий вариант осушения подвала нужно в зависимости от его размера, а также наличия у вас времени и возможностей. Монтаж эффективной системы вентиляции позволит заниматься этим реже, но полностью избавить от необходимости просушивания влажного погреба не сможет даже самая качественная вентиляция, если при строительстве помещения не была выполнена его гидроизоляция.

Сушка стен погреба с помощью самодельной жаровни
Дефлектор для вентиляции в погребе: как сделать устройство своими руками
Принцип работы дефлектора состоит в том, что воздушные потоки, рассекаясь о диффузор, создают в вентиляционной трубе повышенную тягу, за счет чего осуществляется циркуляция воздуха. Использование дефлекторов позволяет сэкономить на электроэнергии, а также увеличить эффективность работы принудительной системы вентиляции. Кроме того, такая конструкция может успешно использоваться и в системе естественного типа.
Различают несколько типов дефлекторов. Рассмотрим самые популярные из них.
ASTATO – дефлектор, который может работать от электродвигателя или от ветра. Конструкция устройства подразумевает наличие специального датчика, который автоматически отключает механическую тягу при достаточной силе ветра. Такой вариант устройства выгодно использовать в тех случаях, когда силы ветра не всегда хватает для обеспечения нормальной циркуляции воздуха. Электродвигатель в таких моделях является достаточно экономным, так что можно не переживать по поводу перерасхода энергии.
Дефлектор-флюгер – вращается исключительно за счет силы ветра, хорош тем, что может подстраиваться под любое направление воздушных потоков. К недостаткам можно отнести то, что входящие в состав конструкции подшипники нуждаются в регулярной смазке и периодической замене. Кроме того, если вы используете такой дефлектор в схеме вентиляции погреба, то учтите, что при низких температурах его механизм может замерзнуть.

Дефлектор-флюгер
Статический дефлектор – относительно новая модель, которая характеризуется наличием эжектирующего вентилятора. При относительно высокой стоимости обладает такими преимуществами, как пониженный уровень шума при работе, высокая эффективность, отвод влаги из системы.
Ротационная турбина – устанавливает в местности со стабильным сильным ветром, поэтому такая конструкция не пользуется большой популярностью.
Кроме этого, существуют шарообразные и Н-образные дефлекторы, дефлекторы Григоровича и другие варианты. Выбор модели зависит от особенностей вентиляционной системы и местности, в которой располагается подвал.

Ротационные вентиляционные дефлекторы
Изготовление дефлектора своими руками
Данное устройство чаще всего изготавливается из листов оцинкованной или нержавеющей стали, а также из пластика. Пластиковые модели дешевле, чем их стальные аналоги, и привлекательнее выглядят, но не могут похвастаться долговечностью. Кроме того, пластиковые дефлекторы очень чувствительны к высоким температурам, поэтому не стоит устанавливать их в том случае, если вентиляционная система совмещает в себе функции дымохода.
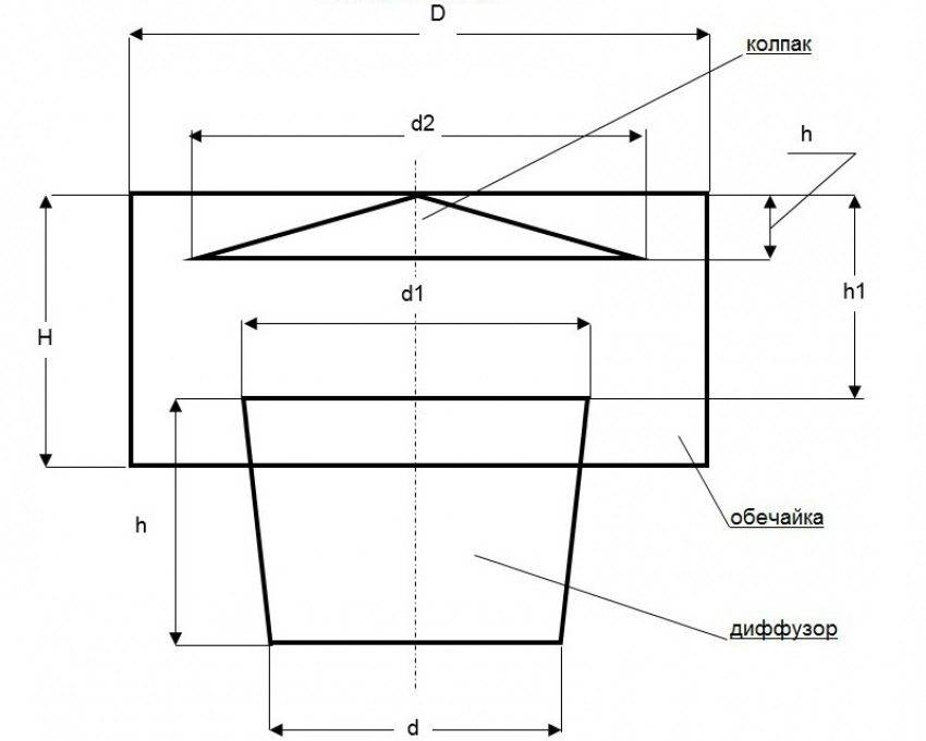
Перед тем как приступить непосредственно к изготовлению дефлектора, необходимо рассчитать его параметры. Высота дефлектора рассчитывается по формуле: H = 1,7xD, в которой D – это диаметр вентиляционной трубы. Ширина колпака равна диаметру, умноженному на 1,8, а ширина диффузора – диаметр, умноженный на 1,3.
Чертежи вентиляционного дефлектора своими руками выполняют на картоне или плотной бумаге, после чего по ним вырезают детали из металла или пластика. Для работы вам понадобятся следующие инструменты и материалы:
- бумага или картон для чертежей;
- ножницы по металлу для вырезания деталей;
- лист металла или пластика;
- маркер или строительный карандаш;
- дрель со сверлами различного диаметра.

Эскиз дефлектора: d — диаметр трубы; d1 = d*1,26; d2 = d*1,7; h = d; h1 = d*0,7; h2 = d*0,25; D = d*2; H = d*1,2
Также рекомендуется при работе использовать средства индивидуальной защиты, то есть специальные очки и перчатки. Само изготовление дефлектора производится в следующем порядке:
- Контуры изделия переносятся с чертежа на лист металла. Сюда входят развертки колпака, внешнего цилиндра, стоек и диффузора.
- При помощи ножниц по металлу данные части вырезаются.
- Соединение частей между собой осуществляется при помощи заклепочного пистолета.
- Готовый дефлектор устанавливается на оголовке трубы и закрепляется хомутами.
При устройстве вентиляции в погребе, монтаж дефлектора является очень ответственным моментом. Установку устройства лучше всего производить вдвоем, так как работы обычно проводятся на высоте. Сначала на выходе вентиляционной трубы закрепляется нижний цилиндр конструкции. Делается это при помощи хомутов либо специальных болтов с дюбелями. После этого к цилиндру крепится диффузор, поверх которого устанавливается защитный колпак. Места соединения частей при помощи болтов рекомендуется дополнительно обработать специальным антикоррозийным составом.
На схеме вытяжки в погребе дефлектор занимает очень важное место, поэтому его сборке и монтажу необходимо уделять особое внимание

Конструкции различных дефлекторов вентиляционных труб
Зачем нужна вентиляция подвала в гараже?
Для сохранения благоприятной микросреды подвального помещения крайне необходимо его постоянное эффективное проветривание, что обусловлено рядом причин:
- В холодное время года земля вокруг подвала не промерзает, ее температура остается положительной, прогревая воздух помещения. Это создает высокий уровень влажности, который способствует постоянному скоплению конденсата.
- Сырость пагубно влияет на деревянные элементы, части подвала, является благоприятной средой появления плесени, грибка, болезнетворных микроорганизмов, влаголюбивых насекомых. Это особенно опасно, если подвал предполагается использовать как хранилище для урожая.
- Также крайне нежелательно поступление избытка влаги внутрь помещения гаража, где она будет оседать на металлических поверхностях, вызывая коррозию (автомобиля в частности).
- Если рядом проходят грунтовые воды, высокая влажность будет сохранятся долгое время. Поэтому подвальное помещение должно просушиваться постоянно.
- Кроме того, необходимо соблюдать определенный температурный режим, когда летом требуется прохлада, зимой – допустимый уровень тепла (если речь идет о хранении овощей, консервации).
- При устройстве подвала под гаражом высока вероятность проникновения туда токсичных веществ, паров топлива, выхлопных газов и т.д. Пусть их будет малое количество, тем не менее это совсем не желательно.
Учитывая приведенные факторы, с уверенностью можно говорить о том, что правильная вентиляция гаража с подвалом просто необходима. При этом само гаражное помещение также должно хорошо проветриваться.
Выводы
В заключении следует так же отметить, что многие ставят в приточную вентиляцию дополнительно вентиляторы для нагнетания воздуха. В этом вопросе нет однозначного ответа, хорошо это или плохо. Поскольку вытяжка в подвале гаража, как и строение его самого, имеет разные проектные нюансы.
Многие не могут сделать вертикальную трубу по причине технологических особенностей конструкции, и приходится делать изгибы, муфты и колена. В таком случае принудительная вентиляция оправдывает себя. В иных случаях, в выключенном состоянии вентилятор создаёт препятствие для потока.
Учитывая все конструктивные особенности вашего погреба в гараже и местоположения, вы сможете правильно установить вентиляцию и обеспечить хорошие условия хранения овощей и солений.
Источники
- https://prorab.guru/stroitelstvo/ustanovka-ventilyatsii-v-pogrebe-pod-garazhom.html
- https://stroim.guru/polezno-znat/kak-sdelat-ventilyatsiyu-v-garazhe-s-podvalom.html
- https://garazhyk.ru/kommunikatsii/ventilyatsiya-v-garazhe-s-podvalom
- https://sovet-ingenera.com/vent/montazh/ventilyatsiya-pogreba-v-garazhe.html
- https://AeroClima.ru/ventilyaciya/v-podvale-garazha/
- https://ProPodval.ru/mikroklimat/ventilyatsiya/kak-pravilno-sdelat-vytyazhku-v-pogrebe-v-garazhe.html
- https://VentilyaciyaDom.ru/garazha/ventilyatsiya-v-pogrebe.html





































