Как сделать щепорез своими руками?
Тем, кто захочет сделать собственный щепорез, потребуется чертеж устройства, материалы, определенные знания и навыки. Чертеж можно найти в интернете, к примеру, тот, что прилагается.
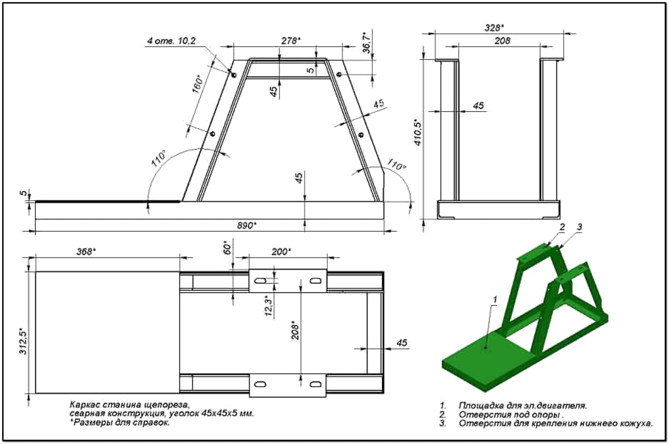
Узлы и детали придется делать и собирать самостоятельно.
Один из основных элементов механизма – диск диаметром порядка 350 мм и толщиной примерно 20 мм. Если ничего подходящего в хозяйстве не имеется, придется вытачивать из листа. Для посадки на вал потребуется сделать хорошо центрированное отверстие с пазом под шпонку. Кроме того, нужно будет выпилить три паза, сквозь которые древесина станет попадать под молотки, и нужное количество монтажных отверстий.


Несколько проще обстоят дела с ножами. Их делают из автомобильных рессор. На ножах просверливаются по два отверстия под крепеж. Кроме сверла, потребуется зенкер. Зенковка позволит утопить потайные головки крепежных деталей. Плотно прикрепить ножи к диску не составит труда любому взрослому мужчине.
Молотки представляют собою обычные стальные пластины, имеющие толщину около 5 мм. Крепятся они на роторе с шагом 24 мм. Купить молотки можно в магазине.
Сито для щепореза – это длинный (около 1100 мм) цилиндр (Д= 350 мм), свернутый и сваренный из листа. Примечательно, что отверстия в сите должны иметь не ровные, а рваные края. Поэтому их не высверливают, а вырубают, к примеру, пробойником с диаметром от 8 до 12 мм.

Все режущие и вращающиеся детали должны закрываться кожухом. Кожух, как и приемный бункер, изготавливают из листовой стали. Отдельные детали вырезают по картонным шаблонам и сваривают в единое целое. Для жесткости конструкции к листам приваривают ребра жесткости из труб или уголков. В корпусе следует предусмотреть все отверстия: для вала, загрузочного бункера и для выхода щепы.
Готовые детали собираются в механизм. На рабочий вал насаживается диск, молотки и подшипники. Вся конструкция закрывается кожухом. Диск ни в коем случае не должен касаться корпуса. Зазор должен составлять порядка 30 мм.
Привод монтируется на заключительном этапе. Самодельный щепорез может работать от электродвигателя напряжением 220 или 380 В. Допускается работа от бензинового или дизельного мотора.

Электродвигатели обладают небольшой мощностью, зато малошумные и более экологичные. Двигатели внутреннего сгорания более производительны, но их работа сопровождается выделением вредных выхлопных газов.
Самодельные щепорезы выгодны при изготовлении арболита для частного строительства.
О том, как сделать щепорез своими руками, смотрите в следующем видео.
Принцип работы щепореза для изготовления арболита
Чтобы сделать качественный станок-щепорез для производства арболита, необходимо иметь чертежи и соответствующие инструменты. Основа такого станка — рубильный диск с радиально расположенными ножами, ротора с молоточками и лопастями. Это рубильно-дробильный механизм, который перерабатывает произвольные куски древесины в щепу. Диск закреплен на стальном валу, вращающимся в двух роликовых подшипниках. К ножам диска древесные отходы подаются через приемный бункер. Срезаемая щепа проходит в щель имеющуюся в диске за ножами и встречается с вращающимися молоточками, которые дополнительно измельчают попадающиеся на своем пути древесные частицы. Далее под действием центробежной силы щепа направляется на просеивающее сито и удаляется через разгрузочное окно.

Необходимые чертежи, по которым для производства арболита может быть изготовлена самодельная роторно-молотковая дробилка, представлены ниже. Так как оборудование самодельное, то и размеры деталей придется подбирать, исходя из собственного материала. Дробилка, изготовленная своими руками по желанию может иметь питание в 220–380 В и состоит из следующих узлов:
- Металлический корпус со съемным (или откидным) кожухом (11,12).
- Свободно вращающиеся биты с молотками для производства непосредственно щепы, секторально разделенные отбойниками (6).
- Диск с закрепленными на нем ножами (4).
- Калибрующее сито с отверстиями Ø 15–20 мм (7).
- Бункер для подачи отходов из древесины (9).
Рабочие чертежи разных щепорезов могут отличаться размерами и наличием тех или иных узлов, но принцип работы остается одинаковым. После подачи на оборудование напряжения 220 В электродвигатель предает свое вращение при помощи клиноременной передачи на барабан с лезвиями (4) через шкив (14) и вал. Нужно только закладывать в подающий бункер древесные отходы, которые сразу перерабатываются в щепу оптимальной длины (до 25 мм).
Изготавливаем щепорез для арболита своими руками
Некоторые детали, чертежи которых представлены ниже, необходимо выточить на токарном станке, остальные можно изготовить своими руками в домашних условиях.
Основные размеры щепореза для арболита
Диск с ножами
Диаметр диска составляет около 300-350 миллиметров, а толщина – около 20 миллиметров. Чтобы предотвратить заклинивание больших и твердых кусков древесины, диск должен работать как маховик. Поэтому его надо сделать тяжелым. Для диска берем металлическую заготовку либо вырезаем его из листовой стали; затем пропиливаем в нем одно центральное отверстие для посадки на вал (учитывая шпоночное крепление), несколько монтажных отверстий и 3 паза, через которые отрезанные части древесины попадают под вращающиеся молотки.
Рубильный диск с ножами
Для изготовления ножей используем автомобильные рессоры. В каждом ноже делаем два отверстия с последующим их зенкованием (чтобы головки винтов были максимально утоплены) и крепим их к диску с помощью болтов с потайной головкой под шестигранник, которые обеспечивают плотное и надежное соединение, а также не позволяют болтам проворачиваться во время обжатия гаек с противоположной стороны.
Молотки
Вал и крепление для молоточков
Молоточки и приваренный отбойник
Молотки – это плоские пластины (толщиной около 5 миллиметров), которые расположены на роторе. Они осуществляют дополнительное измельчение щепы. Молоточки лучше купить готовые. Расстояние между молотками в дробилке арболита 24 мм.
Расстояние между молотками в дробилке арболита
Сито для щепореза
Для изготовления сита, внутри которого будет располагаться растирочная камера, нужен металлический цилиндр Ø 300–350 мм изготавливаемый из металлического листа длиной L 942–1100 мм. В этом цилиндре пробиваются ячейки диаметром 8–12 мм. Просверливать их нежелательно – края ячеек должны быть острыми или рваными, поэтому отверстия рекомендуется проделать пробойником или керном нужного диаметра.
Защитный кожух, воронка, приемный бункер и рама
Для защитного кожуха, и воронки для приемного бункера подойдет листовое железо толщиной 8–12 мм. Листы нарезаются в размер и свариваются в конструкцию так, как указывают чертежи. Нарезаем все детали по заранее подготовленным «выкройкам» (их делаем из плотного картона) Ребра жесткости делаются из уголков, швеллеров или труб.

Защитный кожух
Важно! Сам режущий узел не должен цепляться за стенки корпуса, поэтому чтобы режущий узел свободно размещался в корпусе, диаметр маховика должен быть меньше размера корпуса на 30–50 мм. Оборудование дробильного узла: цапфы вала, на которые необходимо насадить опорные подшипники, плюс била (молотки) и режущий диск. Следующий шаг по изготовлению щепореза — нужно вырезать отверстия для рабочего вала, а также входные и выходные раструбы для подачи сырья и выхода щепы
Следующий шаг по изготовлению щепореза — нужно вырезать отверстия для рабочего вала, а также входные и выходные раструбы для подачи сырья и выхода щепы
Оборудование дробильного узла: цапфы вала, на которые необходимо насадить опорные подшипники, плюс била (молотки) и режущий диск. Следующий шаг по изготовлению щепореза — нужно вырезать отверстия для рабочего вала, а также входные и выходные раструбы для подачи сырья и выхода щепы.
Рабочий вал
Приемный бункер приваривается к корпусу под углом. Механический и электрический приводы монтируются в последнюю очередь: на раму крепится электродвигатель, затем шкивы требуемого диаметра, и все узлы соединяются ременной передачей. Для этого можно использовать обычные автомобильные ремни подходящего диаметра.
Рама
Двигатель
От вида двигателя зависят производительность щепореза и объемы затрат на эксплуатацию. Экологичный электродвигатель не очень шумит, намного легче ДВС, но менее мощный, чем его «собрат». К тому же работа щепореза на электротяге зависит от скачков напряжения в электросети.
Агрегат на бензиновом, более мощном двигателе, работает дольше, больше и он не зависит от розетки электропитания. Но ДВС очень шумит, загрязняет воздух, требует ухода и его постоянно надо заправлять.
Если собранный щепорез для арболита соответствует требованиям точности и в соосности не будет разбега, то можно применить не ременное соединение, а соосную схему — можно подключить валы через муфту.
Последний этап. Хлористый кальций или сульфат алюминия?

Теперь из почти готовой щепы осталось удалить сахарозу, которая приводит к вспучиванию блоков, образованию в них пустот и других дефектов. Делается это с помощью пищевой добавки Е 520 (сульфат алюминия) или хлористого кальция. Эти вещества оказывают мощный антисептический эффект и надежно защищают щепу от гниения.
Очень важная особенность — хлористый кальций более распространен и поэтому его проще найти и купить. Но эффективно работает он только с деревом, которое отлежалось после валки не менее 3 месяцев. Сульфат алюминия полностью удаляет водорастворимые сахара даже из свежей древесины.
Как самостоятельно сделать дисковый щепорез
Нам понадобится:
- Мотор;
- Дисковые пилы с победитовыми напайками в количестве 20 – 25 штук;
- Вал с тем же диаметром, что и посадочное место пил;
- Гайки и шайбы того же размера;
- Подшипники;
- Шкивы и плотный ремень;
- Профтруба, уголок или швеллер из толстого металла;
- Листовое железо толщиной 4-12 мм для маховика, защитного кожуха и загрузочного бункера;
- Плотные пластиковые шайбы по количеству дисков.
Этап 1. Собираем режущий блок
Дисковые пилы по дереву можно купить в магазине. Обойдётся это не дорого. Набираем их на вал, прокладывая их шайбами. Делать это нужно потому, что толщина победитовой напайки больше толщины самого диска.
Чтобы пилы не мешали друг другу, и между ними был необходимый зазор, нужно отделить их друг от друга. Есть вариант приваривать каждый диск к валу.
Но многие умельцы собирают эту конструкцию, затягивая с двух сторон гайками. На гладком валу для этого придется нарезать резьбу в месте посадки дисков.
Можно использовать в качестве вала резьбовую шпильку, в этом случае все проще: на шпильку М20 набираются дисковые пилы с посадкой 20мм и затягиваются с обеих сторон гайками М20.
Такая конструкция имеет преимущество – в случае выхода из строя одного или нескольких дисков их проще заменить новыми. Диски лучше расположить так, чтобы зубья их находились со смещением друг относительно друга или в хаотичном порядке.
Это предотвратит чрезмерную нагрузку на пилы и на двигатель. Расстояние между пилами будет определять величину производимой щепы. Но слишком большое расстояние чревато тем, что мелкие ветки будут застревать между пилами или накручиваться на вал.
Для вращения вала понадобятся два подшипника. Подойдут, например, подшипники от старых ВАЗ 2103, ВАЗ 2105, ВАЗ 2107, стоящие на промежуточном вале коробки передач (размер 20*50*20,6) или на опоре вала рулевого управления тех же авто (размер 20*37,5*22).
Хорошие подшипники стоят в колесах строительных тележек, выдерживающих до 300 кг.
Этап 2. Делаем раму
Из профильной трубы или уголка свариваем раму, на которой будет установлен наш режущий блок. Еще одну готовим для двигателя.
Платформу для него делаем с возможностью регулировки натяжения ремня. Для этого просверливаем в раме два удлиненных отверстия М12 – М14.
Этап 3. Готовим рабочий бункер
Из листа металла толщиной не менее 8 мм нарезаем полосы, которые затем свариваем в конструкцию, представленную ниже. Это бункер, в котором и будет происходить процесс измельчения древесины ножами.
Прочность бункера важна, поскольку он будет выдерживать удары летящих веток. Можно усилить его уголками, которые будут играть роль рёбер жёсткости.
Напротив дисковой конструкции устанавливаем неподвижный нож (контрнож). Именно в него будут упираться разрезаемые ветки.
Готовим его из куска рессоры (рессорно-пружинная сталь очень прочна, что нам и требуется). Ставить его нужно таким образом, чтобы зубья вращающихся пил набегали на него.
Предусмотреть возможность регулировки расстояния от зубьев до контрножа, чтобы менять величину щепы. Для этого нож не приваривать, а прикручивать болтами.
Для закладывания ветвей в механизм необходим раструб, который нужно приварить к рабочему бункеру под углом, чтобы ветви не выбрасывало. Длина загрузочного бункера должна быть больше длины руки. Этим мы обезопасим себя от затягивания рук в режущий механизм.
В нижней части бункера готовим отверстие для выхода готовой щепки. Желательно оборудовать его приваренным рукавом.
Защитный кожух делается откидным, из того же металла. Крепится к корпусу с помощью подшипниковых гаражных петель.
Этап 4. Делаем маховик
Из железа толщиной 10-12 мм вырезаем круг примерно 300 – 350 мм диаметром. Он должен быть тяжелым, так как будет выполнять роль маховика.
Поскольку при мгновенной остановке двигателя в момент выключения может произойти заклинивание крупных кусков дерева, в момент последующего пуска произойдёт резкий нагрев и даже выход из строя.
Маховик, делая остановку постепенной, поможет избежать подобных стопоров. Делаем посадочное отверстие по диаметру вала и сажаем наш маховик.
Этап 5. Устанавливаем двигатель и режущий блок
На рабочий вал устанавливаем шкив. Подойдет снятый с моделей отечественного автопрома. Лучше найти двух- или трехпоточный. Тогда впоследствии можно будет перебрасывать ремень и регулировать обороты нашего щепореза.
Двигатель ставим так, чтобы его ось была параллельна оси дисков, избегаем перекосов. Наш щепорез готов.
При желании можно оборудовать его колесной парой для удобства транспортировки. По такому принципу можно собрать и роторно-молотковый щепорез. Отличаться он будет только режущим блоком.
Технология изготовления арболитовых блоков
Технологическая схема производства арболитовых блоков
Производство арболита в домашних условиях мало отличается от схемы его изготовления в условиях полноценного цеха – разница только в степени оснащенности предприятия. И если в случае с ручным трудом, на выходе получаются небольшие объемы производства, то автоматизированный процесс позволит получать гораздо больше продукции. Соответственно, и итоговая выручка от продаж изделий будет выше.
Перед тем как приступить к разработке рецептуры, следует ознакомиться с ГОСТом 19222-84 «Арболит и изделия из него». Здесь описаны все нормативы, которым должна соответствовать готовая продукция и то сырье, что поступает в цех на переработку.
Технология изготовления арболита может быть описана так:
- Расщепление древесного сырья в присутствии сернокислого алюминия в смесителе.
- Добавление к смеси остальных компонентов и перемешивание массы.
- Загрузка готовой массы в специальные пресс-формы и ее уплотнение.
- Извлечение готовых изделий из форм и их выдержка.
Арболит на производстве выдерживается не менее 2 дней. По истечению этого срока изделия можно переместить на склады или отправить покупателю. Но свою окончательную плотность блоки приобретут только спустя месяц. И только сейчас их можно применять в строительстве
Это важно помнить, поскольку «неготовый» материал может дать усадку, что негативно скажется на прочности всей конструкции
Что касается сырья, то точную рецептуру здесь обозначить довольно сложно, поскольку в каждом конкретном случае состав арболитовой смеси должен просчитываться опытным технологом. А если не прибегать к помощи специалиста, точную дозировку компонентов можно устанавливать только экспериментальным путем. Согласно ГОСТу 19222-84 основным сырьем для получения арболита являются:
- щепа,
- сульфат алюминия,
- цемент,
- вода.
Чтобы на выходе получать опилкобетонные блоки высокого качества, важно организовать на производстве жесткий входной контроль поступающих компонентов. И особые требования выдвигаются именно к древесному сырью. Здесь контролируется размер щепы, содержание в массе коры и посторонних примесей в виде хвои и листьев
Здесь контролируется размер щепы, содержание в массе коры и посторонних примесей в виде хвои и листьев.
Конструкция щепореза для арболита
Если решились сделать щепорез для арболита своими руками, приступаем к изучению чертежей и разбираемся с материалами и инструментами. Независимо от конструкции агрегата, он состоит из следующих основных элементов:
- станины — ее делают из профильной трубы или уголка;
- корпуса — для его изготовления используется листовая сталь;
- рабочего элемента;
- электродвигателя — вместо него может быть бензиновый или дизельный мотор.
Рассмотрим подробнее эти и другие элементы далее.
Корпус дробилки с кожухом
Во время работы механизма корпус должен обеспечивать безопасность оператора, находящихся рядом людей. Для его создания применяют листовую сталь толщиной 1-2,5 мм. Сначала из труб или уголков делают каркас, а затем обшивают его железом.

Для упрощения ремонта, обслуживания агрегата, он должен иметь откидной или съемный кожух. Его делают из того же материала, что и корпус. Дополнительно укрепляют конструкцию при помощи ребер жесткости. Чтобы режущий узел не касался корпуса дробилки, диаметр маховика должен быть меньше размера корпуса на 3-5 см.
Электрический двигатель
При самостоятельном изготовлении такого станка чаще всего используют электрический двигатель. Если же работа будет выполняться вдали от доступа к электроэнергии, придется использовать бензиновый или дизельный мотор.
Электродвигатель работает практически бесшумно, легче ДВС, но его мощность ниже, чем у бензинового или дизельного мотора. Кроме этого, его работа зависит от перепадов напряжения. Чаще всего электромотор подключают при помощи ременного соединения.
Молотки и режущий элемент
Для более качественного измельчения щепы на роторе через каждые 20-25 мм закрепляют плоские пластины (молотки) толщиной 5-6 мм. Эти элементы должны быть одинаковыми, чтобы соблюдалась балансировка вала, поэтому лучше купить уже готовые молотки или изготавливать их с особой точностью.

Режущий диск делают диаметром 30-35 см, а толщиной не менее 2 см. Он будет работать в режиме маховика, что уменьшает вероятность заклинивания вала при попадании щепы между корпусом и диском.
Прочные, надежные ножи получаются с автомобильных рессор. Крепежные отверстия в них делают с потаем, чтобы утопилась головка болта, и надежно фиксируют на диске.
Калибрующее сито
Этот элемент выполнен в виде цилиндра с отверстиями диаметром 8-12 мм. Для их создания лучше использовать пробойник, а не сверло, т.к. края отверстий должны быть острыми и рваными.
Толщина листа, из которого делают калибрующее сито, не менее 5 мм. Для создания цилиндра диаметром 30-35 см понадобится лист длиной 94-110 см.
Подающее устройство
Этот элемент обеспечивает безопасную подачу материала для переработки. Чтобы обезопасить и упростить загрузку, подающее устройство делают под углом, тогда древесина движется к рабочему элементу под собственным весом, исключается ее выбрасывание назад. Бункер делают из листа стали толщиной 1-2,5 мм, на стыках усиливают его уголками или арматурой.

Понятие щепореза
Чаще всего щепорез оказывается необходим людям, которые планируют постройку помещения из арболитовых блоков. Покупка заводского станка — дорогая затея.
Выделяют следующие разновидности дробилки, все из них можно изготовить своими руками:
- С роторно-молотковым механизмом. Самый простой в изготовлении и универсальный прибор. Подойдет для переработки древесных отходов любого типа.
- Барабанный. Сложен в исполнении, поскольку не так легко найти барабан нужного размера.
- Дисковый. Данный вид станка легко сделать своими руками. Он состоит из вала, на который насажены диски. Размеры измельченной древесины подлежат регулировке. Она осуществляется увеличением или уменьшением расстояния между дисками.
- Шредер. Имеет сложную конструкцию и применяется для грубого измельчения дерева. Изготовление такого щепореза предполагает использование мощных шестеренок или наличия двух валов, материалом для которых служат металлические уголки или самодельные ножи из рессоры.
Несмотря на различия, станков для щепы своими руками изготовленных, как правило, их принцип работы схож. Конструкция предполагает наличие двигателя, который осуществляет вращение вала. Вал же в свою очередь передает движущую силу на шкив барабана, который содержит режущие элементы. Эти элементы и производят переработку древесного материала в щепу.
Выбор оборудования для изготовления
Наиболее подходящим оборудованием для получения щепы требуемой формы и размеров является специальный деревообрабатывающий шредер. Однако стоимость станка настолько высока, что вне производства приходится искать другие варианты.
Арболит вполне возможно изготавливать в домашних условиях. Для этого и щепу нужно делать самостоятельно. Измельчителем древесины в условиях подсобного хозяйства становится щеподробильный станок. Щепорезы бывают трех типов.
Дисковые рубильные машины обрабатывают древесину различной формы. За счет регулировки наклона режущего инструмента можно получать заготовки требуемого размера.

В барабанных щепорезах измельчают всевозможные отходы: лесозаготовительные, мебельного производства, обрезков после строительства. Сырье загружают в объемный бункер, откуда оно попадает в камеру и разрезается ножами с двусторонними лезвиями.

Роторные дробилки молоткового типа выпускаются с двумя или одним валом. Основные элементы устройства – молотки и отбойники. Сначала древесина измельчается ударным способом, затем готовая продукция просеивается сквозь сито. От величины ячеек сита зависит размер получаемой щепы.

Во всех перечисленных устройствах предусмотрена только ручная загрузка материала.
Устройство станка
Щепорез, чертежи какого можно взглянуть на картинках к нашей сегодняшней статье, состоит из таких центральных элементов:
- Корпус машины.
- Кожух с защитной функцией, который оберегает двигающиеся части устройства. Может быть откидным или снимающимся.
Мотор. Он может быть электрическим или внутреннего сгорания.
Вал, который совмещается с двигателем.
Наружный шкив, который соединяет между собой вал и мотор.
Молотки плоской формы, когда находятся в свободном вращении.
Отбойники, которые делят молотки на некоторые части (сектора).
Диск, на котором закреплены ножи.
Сито. Размер ячейки в нем составляет 15-20 мм. В нем собираются продукты рубки.
Входной патрон, в который конкретно подаются отходы древесины.
Приготовление арболитовой смеси
Согласно все той же голландской технологии, смешать высококачественное сырье из щепы и цемента в обычной бетономешалке нельзя.
Нужно затратить очень много времени на то, чтобы добиться однородной консистенции без комков. На производстве для этого используются машины принудительного смешивания. Однако, как показывает опыт, арболитовую смесь приготовить можно даже вручную обычной лопатой, и на качестве это чтобы уж так существенно не сказывается.
Порядок выполнения работ должен быть примерно следующим. В бетономешалку закладывается около 5–7 порций щепы, замоченной в известковом растворе.
Туда же загружается 3–4 порции цемента. Если планируется добавлять какие-либо химические компоненты, то они также закладываются на этом этапе, с учетом пропорции. После загрузки все тщательнейшим образом перемешивается.
Проверить правильность приготовления арболитовой смеси можно на ощупь. Если она слегка рассыпчатая и держит форму после сжатия в кулаке, то все сделано правильно.
Как изготовить без брака?
Можно выполнить работу двумя способами. Если купить специальную формовочную машину, то проблем никаких возникнуть не должно. Более бюджетным вариантом является поштучное изготовление блоков.
Для этого собираются деревянные ящики со съемным дном. Внутри форма обивается линолеумом или толстым полиэтиленом. Чтобы загруженная масса после сушки легче вынималась, отделка предварительно обмазывается мыльным раствором.
После загрузки арболитовой смеси в формы изделиям дают настояться в течение 10 дней при температуре не ниже 15 °C. Если погода стоит более холодная, то время должно увеличиваться. При этом отрицательная температура воздуха недопустима.
Кроме того, чтобы добиться максимальной прочности, рекомендуется накрывать опилкобетонные блоки полиэтиленовой пленкой. Так процесс гидратации пройдет более эффективно.
Заняться производством именно качественного материала невозможно без:
Щепореза для арболита.Еще называют молотковой дробилкой.
Ориентировочная цена нового станка – 45-50 тысяч рублей. Щепорез выдает удобную в производстве щепу (длина не более 25 мм). Именно для производства в подсобном хозяйстве достаточно поставить станок роторно-молоткового типа.
Чертежи:Станка для арболитовых блоков. Опять же в работе понадобится устройство не промышленного масштаба, а его мини-версия. Так как мелкое производство арболита набирает оборот, соответственно, и в цене оборудования для гаражей, сараев и мелких промзон.
Оборудование обойдется частнику в те же 50-60 тысяч. За одну минуту можно вырабатывать один блок, что дает до 6,5 кубометров материала за рабочий день (ориентировочно до 450 блоков).Бетономешалки.Привычные в строительстве аппараты гравитационного типа не сгодятся. Для качественной смеси их цикла не хватит.
Потому что даже свое, мелкое производство требует аппарат принудительного типа (растворомешалку). Обычно из делают также собственноручно.Пресса.На мелком объеме позволительно утрамбовывать смесь вручную, но частная потоковая линия требует уже вибропресса. Отлично зарекомендовала себя .Аппараты «Рифей».Но самый распространенный аппарат на производственную линию – это «Кондор 1», стоимостью от 265 тысяч рублей.
Однако частное подсобное хозяйство приемлет любые вспомогательные средства, поэтому в работе также принято использовать мини-станки «Строитель-1» или «Гефест-1».
Специальных форм.Здесь ничего сложного, можно наштамповать обычных ящиков для удобства.
Но есть некоторые хитрости. К примеру, внутренние площади принято обклеивать клеенкой. Это просто идеально для подсыхающего раствора.
Иногда на дно формы просто льют масляную отработку. Новшеств много, но важнее всего процесс трамбовки в саму форму. Сразу состав равномерно не скомпоновать, поэтому делают 3 или 4 закладки с периодической протрамбовкой.
Технология
Схема получения арболита в домашних условиях ничем, кроме оборудования и производительности не отличается от промышленной.
- Изготавливают щепу. Годится для этого горбыль, фрагменты доски, даже кора и хвоя, но только в небольшом количестве – до 5%. Используется не всякая древесина: тополь, береза, сосна, ель, бук.
- Древесина содержит сахаристые соединения, которые разрушают цемент. Поэтому перед использованием деревянную щепу выдерживают на воздухе под навесом 3–4 месяца. Периодически ее нужно переворачивать.
Можно ускорить процесс, замочив щепу в известковом молоке на 3–4 дня. Готовится молоко из расчета 50 кг извести на 200 кг щепы. Материал после обработки выдерживают на воздухе еще 3 дня.
- В качестве вяжущего применяют цемент не ниже М400 – именно он обеспечивает прочность. Пропорции выбирают, рекомендованные ГОСТ. В среднем для изготовления 1 куб. м. арболита необходимо 250–300 кг щепы, 300-350 кг портландцемента и 400 л воды. Воду подают с растворенными добавками: хлористый кальций, хлористый алюминий, сернокислый алюминий – 2–4% по весу.
- В бетономешалку сначала помещают щепу, поливают раствором и вручную перемешивают: необходимо, чтобы раствор распределился равномерно. Затем добавляют портландцемент, оставшуюся воду и перемешивают.
- Готовый арболит укладывают в формы, осаживают вилами и утрамбовывают ручной трамбовкой. Уплотнение в среднем достигает 20%. Укладывают в 2–3 слоя, чтобы добиться равномерного уплотнения.
- Если блоки предназначены для внешних стен, то форму не заполняют целиком, рассчитывая так, чтобы утрамбованная смесь не достигала края бортиков на 2 см. Этот промежуток заполняют раствором штукатурки или декоративным бетоном.
- Блок остается в форме в течение суток. Затем его вынимают и оставляют под навесом на 2–3 недели в зависимости от погодных условий.
О том, какие ошибки встречаются при изготовлении блоков из арболита своими руками, расскажем далее.
Технология изготовления арболита своими руками представлена в этом видео:




































